
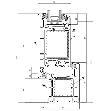
Система KBE 58 позволяет создать всевозможные квартирные, балконные и террасные двери.
Профиль KBE производится по уникальной технологии greenline. Не содержащие свинец окна KBE рекомендованы для установки в детских и лечебно-профилактических учреждениях.
Экологическая безопасность окон соответствует международному стандарту эко-маркировки.
| Ширина профиля (монтажная глубина) (мм) | 58 |
| Цвет профиля | теплый белый, RAL9016 |
| Класс профиля (по толщине внешних стенок) | Б |
| Рецептура ПВХ | кальций-цинковая |
| Варианты открывания | наружное |
| Цвет уплотнителя | черный |
| Срок эксплуатации | более 40 лет |
| Страна-технолог | Германия |
| Город-производитель | Воскресенск |

Дверная Z-створка KBE 70 предназначена для применения её в дверях с внутренним типом открывания.
Профиль KBE производится по уникальной технологии greenline. Не содержащие свинец окна KBE рекомендованы для установки в детских и лечебно-профилактических учреждениях.
Сферы применения Z-створки:
| Ширина профиля (монтажная глубина) (мм) | 70 |
| Сопротивление теплопередаче с армир. (м²*°С/Вт) | 0,83 |
| Цвет профиля | теплый белый, RAL9016 |
| Количество камер | 5 |
| Класс профиля (по толщине внешних стенок) | Б |
| Толщина заполнения (мм) | 24, 32, 40 |
| Рецептура ПВХ | кальций-цинковая |
| Высота профиля (рама+створка) (мм) | 167 |
| Варианты открывания | внутреннее |
| Армирование (мм) | 1,8 |
| Цвет уплотнителя | черный |
| Срок эксплуатации | более 40 лет |
| Страна-технолог | Германия |
| Город-производитель | Воскресенк |

Система KBE 70 позволяет создать всевозможные квартирные, балконные и террасные двери. И все это с выдающимися тепло- и звукоизоляционными свойствами.
Профиль KBE производится по уникальной технологии greenline. Не содержащие свинец окна KBE рекомендованы для установки в детских и лечебно-профилактических учреждениях.
Экологическая безопасность окон соответствует международному стандарту эко-маркировки.
| Ширина профиля (монтажная глубина) (мм) | 70 |
| Сопротивление теплопередаче с армир. (м²*°С/Вт) | 0,83 |
| Цвет профиля | теплый белый, RAL9016 |
| Количество камер | 4 – створка, 5 – рама |
| Класс профиля (по толщине внешних стенок) | Б |
| Толщина заполнения (мм) | 32, 40 |
| Рецептура ПВХ | кальций-цинковая |
| Высота профиля (рама+створка) (мм) | 167 |
| Варианты открывания | наружное |
| Армирование (мм) | 1,9-2 |
| Цвет уплотнителя | черный |
| Срок эксплуатации | более 40 лет |
| Страна-технолог | Германия |
| Город-производитель | Воскресенк |
Предложение доступно для юридических лиц